“I’ll just put it there for now, then I will fix it next week”…
I don’t know you, but I have pronounced those words many times (and I still do, to be honest!). Then, after countless weeks, one day you open the cupboard, and it is there, staring at you… bringing back the memories of all the broken promises!
As you can guess, there are many broken things in my cupboard, still waiting to be repaired, but this particular one has been sitting there for about 7 year. Back in 2008 I bought a power supply (12V – 5A) to be used with my CCTV system (cameras and recorder). It failed in 2015, after 7 years of 24/7 service. At the time, I didn’t have time to troubleshoot the problem, and I just replaced with a more powerful model (12V – 10A, which is still currently powering the CCTV system), with the promise I would come back to it to try and fix it. Well,it only took 5 years and a gentle push from my wife who, because of the lock-down for the COVID-19 pandemic, is in a permanent “let’s get rid of your junk” mode: the only way to save my beloved power supply from the bin is to fix it!
Introduction
Before starting, a word of caution: this projects involves using high voltage, which can cause harm. So, if you need to do some work on something you don’t know or understand, my advice is don’t do it. And if you really want to do it, try reading about it first, then take all the precautions to avoid any injury or electric shock before you actually touch anything.
I will split this in 2 parts: in this first part I will inspect the power supply, and find out the circuit layout, to gain some insights. In part two, I will describe the failure symptoms, and find the failed parts, replace them and test if the fix works.
I will documents as much as I can by showing photos and videos, but for sake of clarity, I must warn that some of the photos will already have some of the original components either de-soldered or replaced (I have not taken any photos of the original board unfortunately), as I had already starter the repair when I realised about the Project14 Restoration and Repair competition.
As I'm not really an expert on power supplies, please feel free to provide your comments/insights/correction as you see fit, any contribution is always welcomed!
Let’s inspect the Power Supply
At the time, I bought this to power both the CCTV cameras and the recorder. All the cameras required 12v 500mA max to run, and the recorder required 12v 2A max. So, with 4 cameras and 1 recorder, I figured out that a 12v 5A power supply would be enough, so I went on and bought one from a CCTV online shop. The photos below show the power supply with its metal box enclosure. As you can see, the unit is made of a main power supply and a separate power distribution board. On first inspection, the overall quality of the power distribution board is good, and the unit even came with some spares included (1 standard fuse + 4 self reset protection fuses).
| {gallery} 12V 5A Power Supply |
|---|
|
Power Supply: Metal enclosure |
|
Power Supply: PS Unit and power distribution board |
|
Power Supply: Spare parts included |
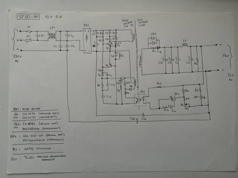
Time to get the screwdrivers out and disassemble the unit, to get the board of the main power supply out. All is needed is to remove a 3 screws from the side of the metal enclosure, and the main power supply is free. The model is a FDPS-50A, 12V 5A (60W) from SunPower, a manufacturer of power supplies from Taiwan. I have tried looking on the internet for the schematics of this board, but could not find any, so at the end I decided to draw the schematic from scratch, following the PCB traces and working out the components. So, lets open the metal box and gain access to the board.
The photos show the front and back of the PCB. My first impression of the board is good: the layout is pretty clear, with a good isolation of the high voltage (hot) part of the circuitry from the low (cold) one. The 2 power components have their own dedicated heatsinks, which in turn are connect to the metal casing of the power supply (ignore the missing components in the photos below).
One thing that left me puzzled is the choice for the ultra fast switching diode IC: the original board thru hole pads are made for a TO-247 package component, while the board uses a TO-220, and 2 smaller holes have been made (not sure if the PCB already came with 2 set of holes to allow different size components, which makes sense if the same board is used for different power sizes supplies). Now, time to trace the components and draw the schematic. To help me with the task, beside constantly checking on the actual board, I have used the photos of both sides and merged together. The result is not exceptional, but it helps with following the connections.
After couple hours spent putting together the circuit, the photo below shows the circuit. I haven't managed to add the components values, as for most of the capacitors I have no way to check the markings, unless I remove them from the board.The schematic will help understand the power supply topology, and how the parts fits together. For a very quick overview of the various power supply architectures used, there is nice and short article which also links to a table which shows the different topologies.
From the schematic, it is easier to identify what type of switching power supply we are dealing with: it is a flyback topology. As nicely explained on the article mentioned above:
"The flyback topology is essentially the buck-boost topology that is isolated by using a transformer as the storage inductor. The transformer not only provides isolation, but by varying the turns ratio, the output voltage can be adjusted. Since a transformer is used, multiple outputs are possible. The flyback is the simplest and most common of the isolated topologies for low-power applications. While they are well suited for high-output voltages, the peak currents are very high, and the topology does not lend itself well to output current above 10A.
One advantage of the flyback topology over the other isolated topologies is that many of them require a separate storage inductor. Since the flyback transformer is in reality the storage inductor, no separate inductor is needed. This, coupled with the fact that the rest of the circuitry is simple, makes the flyback topology a cost effective and popular topology."
Let's analyse the circuit, starting from a very simplified block diagram representation of the power supply, which will help with mapping the part of the circuit to their respective functions (forgive the notation, I tried to make it as intuitive as possible!).
In its simplest form, the diagram shows a switching power supply based on a self-oscillating flyback topology (also known as RCC - Ring Choke Converter), which is the design our power supply is based on.The next step is to identify each block and describe its function.
Protection and Filtering
This part of the circuit provide protection to the circuit via the fuse F1 and the thermistor RT1. The capacitor C1 to C4, together with the common mode filter LF1 reduce the interference generated by the switching noise.
Rectifier
This part of the circuit takes care of transforming and smoothing the AC signal into a DC one. This is accomplished by using the solid state bridge diode BD1 in conjunction with the 2 bulk filter capacitors C5 and C6.
Power Switch
The power switch is the actual switch which turns on and off, exciting the primary winding of the transformer, storing energy in the magnetic core when in the ON state, and releasing the stored energy when in OFF state. The actual switch is provided by a BJT power transistor (Q1: part 2SC4236). Part of the power switch block are also the snubber circuits made by D1,R3,C7,C8 and R4,C9, used to suppress the ringing due to the switching. R1 and R2 I believe are start-up resistors, used to switch Q1 on and start exciting the primary winding. R5 is a sensing resistor, used to provide feedback to the self-oscillating circuit.
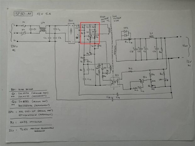
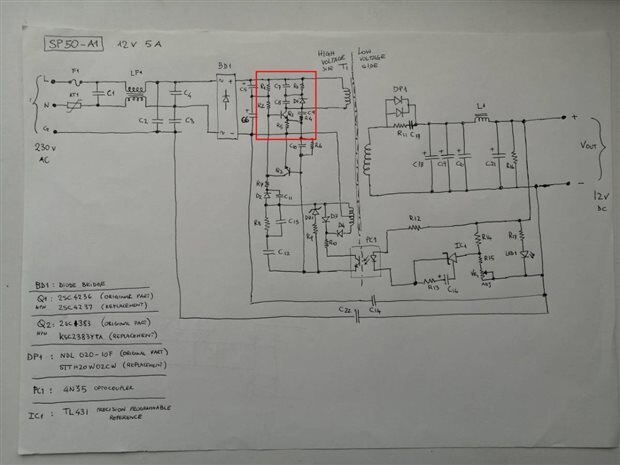
Transformer, Self-oscillating circuit and Feedback network
I choose to put these three blocks together, because they work synergistically to provide the "beating heart" of the power supply. The transformer is the mean that allows the energy to be transferred from the primary "hot" side to the secondary "cold" side, providing isolation. As mentioned before, the flyback typology uses the transformer core to store energy using the primary winding, which is then released to the secondary windings. I intentionally used the plural, as there are 2 secondary windings, one on the primary side and one on the secondary side. The secondary winding at the primary side is used to power the self-oscillating circuit, once the start-up phase has excited the primary winding, as it creates a positive feedback loop. This way the self-oscillating circuit produces a sustained PWM oscillation to control the switching of Q1, whose frequency is variable. Responsible of such task is the BJT transistor Q2 (Q2: part 2SC1383), in conjunction with the feedback network (the output voltage is regulated). The feedback network uses a precision programmable reference (IC1: part TL431) to compare the output voltage of the power supply, and drive the LED of optocoupler, (PC1: part 4N35) which induces an error current on the photo-transistor. Such error current produces a error voltage through the resistors R5 and R6, which is summed to the voltage across the sensing resistor due to the current coming from the emitter of Q1. The error signal causes a change of the frequency of the oscillation (via the network of R-C elements R7, R8, C11, C12, C13). I will not attempt to describe the switching cycle in greater detail, as is quite complicated, and for what is needed here, just grasping the basics will suffice. In photos below, in red is the self-oscillating block, in green is the feedback network (no need to highlight the transformer, as it is the biggest component on the board).
DC Output
This is the cold side of the transformer, where the 12V final voltage is generated. The current induced on the secondary winding flows through the ultra fast switching diode pair (DP1 : part NDL 020-10F). The snubber network for the diodes is provided by R11 and C17. C18, C19, C20, L1, C21 take care of filtering the high frequency component of the signal. R16 provide the output resistance with no load. LED1 is the switched on light, with R17 being the current limiting resistor. The precision programmable reference IC1 is controlled with the R14/R15/VR1 divider (VR1 is a trimmer, used to adjust the output voltage). The difference between Vout with the precision reference generate a signal that will drive the LED of the optocoupler, closing the feedback loop to the primary side while still providing isolation.
This concludes the inspection of the PCB and the analysis of its layout and functionalities. In part 2 I will attempt to find the fault and fix it.

















Top Comments