Ok well here is my Universal ATR box known as
<html><head><title>Jive SBS</title></head>
<body><font face="arial,helvetica,sans-serif">
<b>Error</b><br><font size="-1">
An general error occurred while processing your request.
</font></font></body></html>
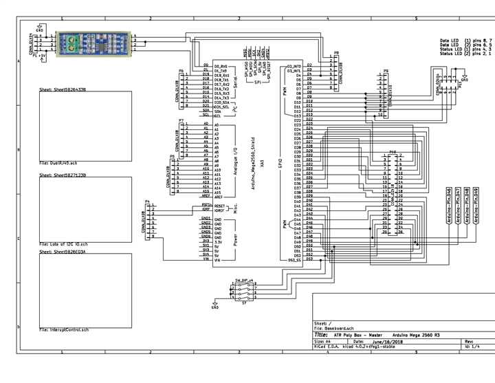
First, let me say that the Sterilite model #1961 has 8.75" x 5" of usable space for my baseboard. So here are my design rules: (1) All components will be plugged into the baseboard; (2) There will be only one copper for both master and slave units; (3) The ATR.poly boxes are standardized. (4) The main components are plugged in so that means there are Female Headers with solder-tails mounted to the baseboard. Some components such as the I2C expanders are not installed in the master. Nor is the priority encoder SN74LS174 in the slave.
| Signal Name | RJ45 Pin |
|---|---|
| Data | 1 |
| Data | 2 |
| Ground | 3 |
| Power | 6 |
| Data Monitor | 9 |
| Data Monitor | 10 |
| Power Status | 11 |
| ground | 2 |
| RS-485 Interconnect Wiring | ||
|---|---|---|
| Signal Name | From Pin | To Pin(s) |
| DataMon.1.1 | J2.9 | Con1.6 |
| DataMon.1.2 | J2.10 | Con1.7 |
| DataMon.2.1 | J1.9 | Con1.8 |
| DataMon.2.2 | J1.10 | Con1.5 |
| Status.1.1 | J1.11 | Con1.2 |
| Status.1.2 | J1.12 | Con1.1 |
| Status.2.1 | J2.11 | Con1.4 |
| Status.2.2 | J2.12 | Con1.3 |
| Data1 | J1.1 | J2.1, wire white-orange* |
| Data2 | J1.2 | J2.2, wire orange* |
| Ground | J1.3 | J2.3, wire white-green* |
| Power | J1.6 | J2.5, wire green* |
* the pairs white-orange/orange and white-green/green should be twisted pairs. | ||
WAIT YOU SAY! The Arduino plugs into the baseboard? Duh? Ok well, I am buying my Megas without headers installed. And then installing stacking headers on them. 
RS-485 Communication is handled by a Module which contains a MAX485ESA. Interconnecting the RS485 multi-drop is accomplished by a pair of RJ45 connectors with status LEDs (they must not have any magnetics). The module just plugs into a pair of 1x4 headers on the baseboard. I am using standard ethernet jumpers 12" long. (this preserves the twist for RS-485 (specified in the spec). The pair of RJ45 jacks are just wired to each other pin to pin (see RS-485 Interconnect Wiring Table).
The Status LED is light from a CPU GPIO after initialization.
The Data Monitor LED is connected to the Arduino's RX1 and TX1. It really doesn't matter as only one will be high at a time. The Inputs to the RS-485 module are also these ports as well.
There is also a dip-switch (4 poles){only on slaves} that is used on the slaves to identify the slave to the master.
As I got feed up with eagleCAD I am now using KiCAD. KiCAD has an almost Zero learning curve. This is my first drawing with KiCAD, it's hierarchical and I am showing the baseboard itself, and the dual RJ45 Module.
Stay Tuned More to Come
Addendum: Final Thoughts, One quirk that KiCAD has is its export function. It only exports as a PDF life (with a transparent background (you know the black and gray checkerboard) which is in its self a problem well you can see the damn thing. So first I tried image magic, that gets me to a png file but still with the background. So I grabbed my swiss knife gimp and opened it in layers. So now all you do is export it and turn off the background in the dialog. - fins.




Top Comments