Greetings!
Goal: a smart, connected range hood to send images of what's cooking and to alert the user if something doesn't seem right.
First post and links to all of my other posts for this project - Smart Range Hood - Pi Chef Challenge Blog post #1
PDF, STP, STL, .ipt, and .iam files are all linked to this post for anyone brave enough to make their own 
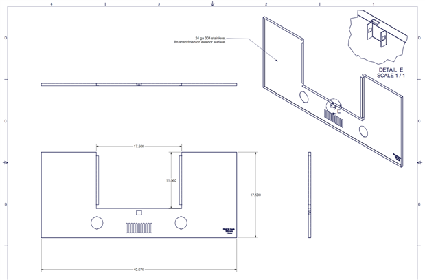
I have completed my mechanical design for the range hood. This will consist of two pieces of sheet metal bent up by a local fabricator to meet my specifications. For many reasons, this feels like a major hurdle that I have crossed since it has been such a long time in the works.
This took many hours of measuring, remeasuring, remeasuring again, then all the CAD work - I spent a lot of time trying to get the "contour flange" to work properly in order for the front panel to lay out properly. Many hours of trying, reading tutorials, doing lessons, and watching videos on YouTube were required to achieve this finished portion of the project. I know that most the focus of this Newark Design Challenge will be related to the electrical architecture, controls, and wiring, but for my project the sheet metal represents a significant portion. This is doubly true since the goal will include the fact that this is a permanent fixture in our house and will outlive our tenure here - I need to make it good enough that when we sell our house it can stay. Granted that the RaspberryPi will be removed and the normal controls will be replaced; but the rest will be here for a long time to come. If for any reason the new hood can't arrive and be integrated in time, the doner hood will be used as a substitute. I can validate all features through using it as a stand-in.
But fear not, nerds! Most the rest of the blogs from here on out will focus on getting the electrons to bend to my will!!! 
Autodesk Inventor Assembly steps -
I took a quick video which shows the actual steps taken to design the hood. The measurements were a combination taken from tape measure, caliper, and a mashup between the original hood and the doner hood parts. I had to make the fan box from the doner hood fit into a new enclosure which subsequently fit into a 40 year old built-in cabinet system in my house. One example is the power entry - the two hoods have this located in a slightly different spot. I need to use all the electronics of the new hood, but physically locate them where the old hood had them.
Overview video -
This video explains the design constraints of adapting the doner hood to a new design which works in the old opening.
Autodesk Inventor is a 3D modeling program which serves as a successor to Autodesk AutoCAD. Inventor is designed from the ground up as a 3D modeling program; as opposed to AutoCAD which is a 2D drafting program adapted for the 3rd dimension. This means that many features of Inventor are more intuitive to the actual design and manufacturing process and doubly true that creating 3D assemblies of multiple components becomes much easier. Creating "joints" and "constraints" in an assembly of multiple individual components allows the user to easily check for fitment, tolerances, and interferences very easily. In my case, I had to ensure that the insert had adequate room for the spring clips and was still able to press in and press out easily. I was able to model the two major components individually, then create an assembly which contains them both. The two pieces were "constrained" to each other allowing mechanical movement only in certain directions across certain planes. I could then manipulate the assembly based on these joints and constraints - I could move the insert back and forth to measure the travel; then ensure that the spring clips would work properly and still allow the user to remove the insert.
Flange and contour flanges - here are some links to the textbook methods of creating them. They made 90% of the model that I needed.
Flange in Inventor -
Contour flange in Inventor -
Most of what was done in Inventor started with a very basic sketch. They say if you're drawing more than rectangles and circles, you're over-thinking things. I started with a rectangle which was 40.25" x 12". Then I used the "flange" tool which makes a bend in the sheet metal, and dictated that it be ~5" tall to create the rear panel. Then another flange was created on one end of the rectangle for the right side of the hood. The process continued of creating flanges and bending the part usually at 90 degrees and that got me through most of the design process. I created the bolt patterns using a "point" then creating a "hole" with them. This allows precise placement, and the hole feature allows many useful features such as counterbores and chamfers.
I spent a lot of time in this design process thinking about how to make the sheet metal easy to manufacture. I am only planning to make a single piece, so want the fabricator to be able to easily create it. I need to know that they probably won't make a lot of money on a job like this, and if they make any mistakes and have to start over then they will likely lose money. If I was creating this commercially I could think about it much differently - the fabricator would probably make a nice jig and the could afford to waste a few pieces here and there across the 1000's or more units they build.
Probably very difficult to make "one" copy of:
Probably much easier to make "one" copy of:
Another area I spent a lot of time on is relative to the placement of the sensors - I officially have the following which require being able to "sense" the range top - GridEye IR sensor, Raspberry Pi 8mp camera, DHT22 Temperature/Humidity sensor, and a total of four "MQ" air sensors.
I was considering using a replaceable panel on the insert which could have custom holes or a 3D printed section to hold the sensors. I later changed this to just some slots. This would be quite incognito for the current iteration as it will hide all the sensors; plus later on wouldn't look strange when this becomes a normal "dumb" range hood.
Here are the actual assembly steps shown in Inventor -
Final major mechanical components -
Here are the final components - I have attached the .iam, .ipt, .pdf, .stp, and .stl files for all of this to the post (archive.zip). If you want anything else, please let me know. I sent the PDFs and also created a .dxf file for the manufacturer. The PDFs attached to this post show all the major dims of this component.
More information / Use caution when doing a project such as this!!!
Please keep in mind that a project like this requires working with mains voltage. In the US this is 110 volts AC - that is more than enough to maime/injure/kill a person, or burn down their house while they sleep. Besides the obvious of crossing wires or forgetting to shut off mains when installing, improper grounding can cause a voltage between the hood and the stove which could kill someone. I do not recommend anyone else perform this modifications themselves unless they are or consult a licensed electrician. If you die or burn down your house, this is not my fault but your own.







Top Comments
-
gecoz
-
Cancel
-
Vote Up
+2
Vote Down
-
-
Sign in to reply
-
More
-
Cancel
-
aspork42
in reply to gecoz
-
Cancel
-
Vote Up
+1
Vote Down
-
-
Sign in to reply
-
More
-
Cancel
-
beacon_dave
in reply to aspork42
-
Cancel
-
Vote Up
+2
Vote Down
-
-
Sign in to reply
-
More
-
Cancel
Comment-
beacon_dave
in reply to aspork42
-
Cancel
-
Vote Up
+2
Vote Down
-
-
Sign in to reply
-
More
-
Cancel
Children